Patrick Resendiz
Design Services
Canva Library
Training Academy
Projects
Instagram
About
Design Services
Canva Library
Training Academy
Projects
Instagram
About
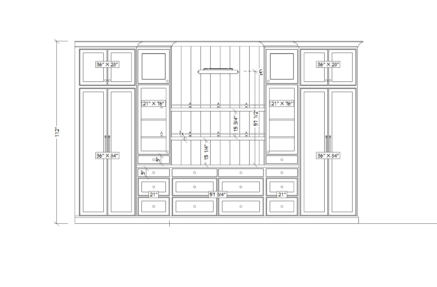
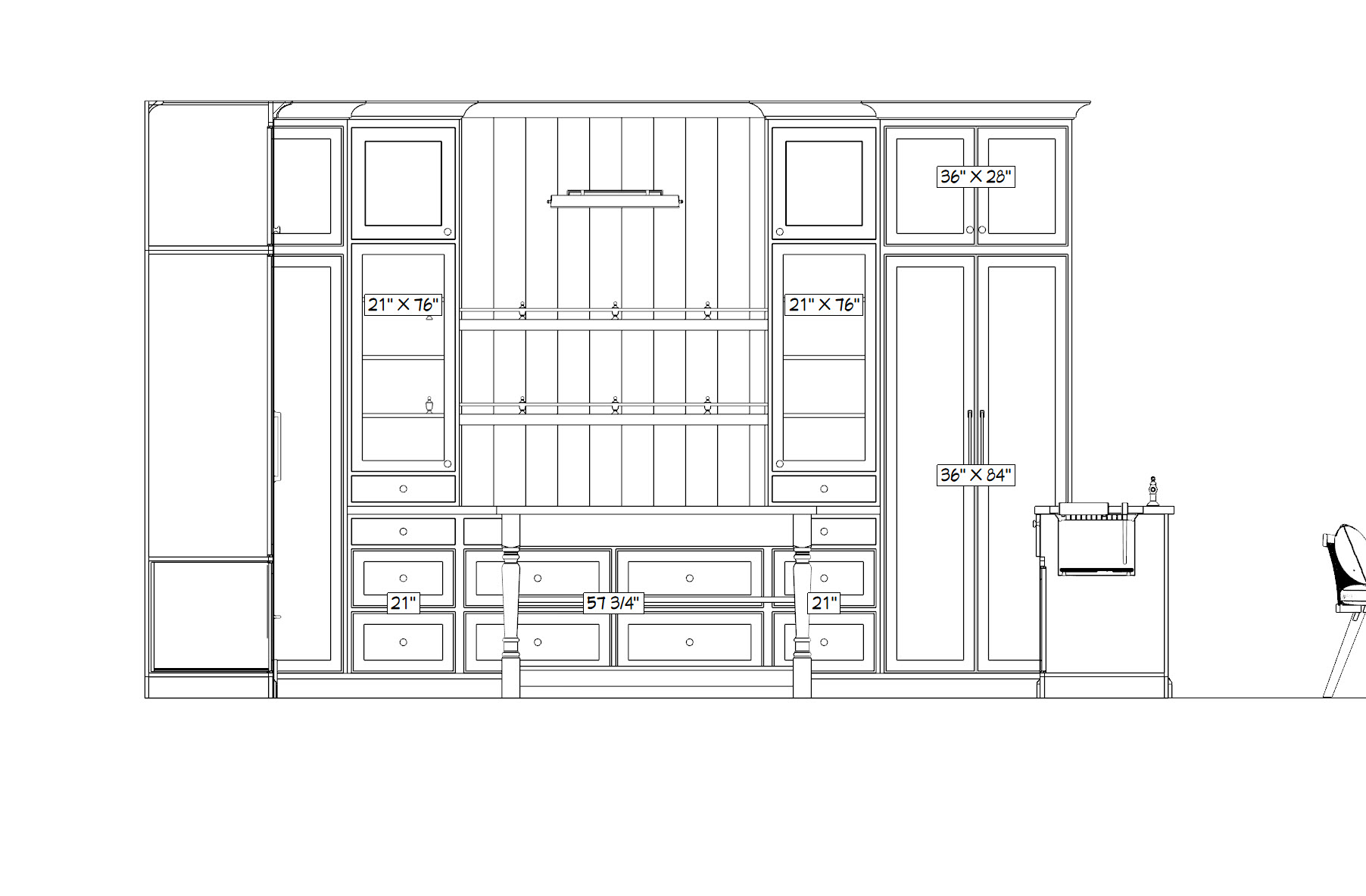
Back to Projects
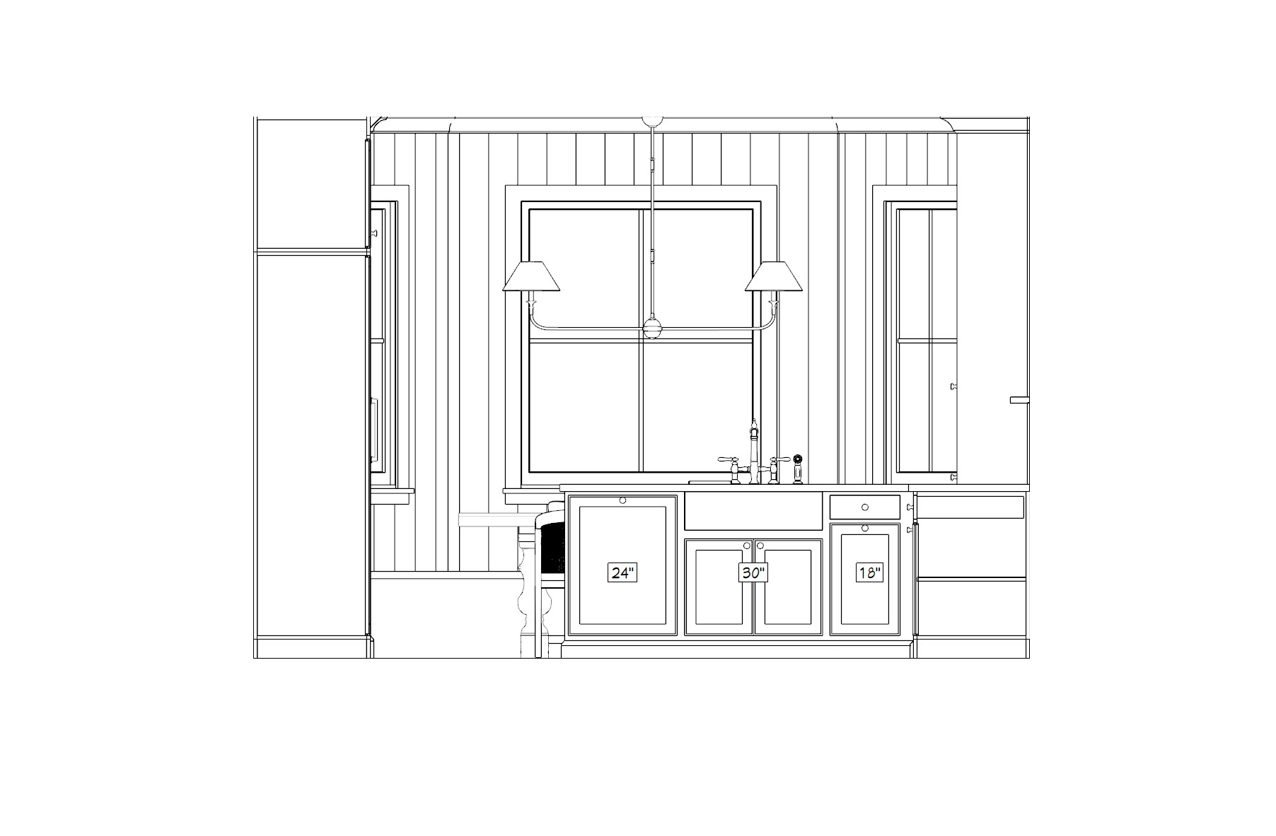
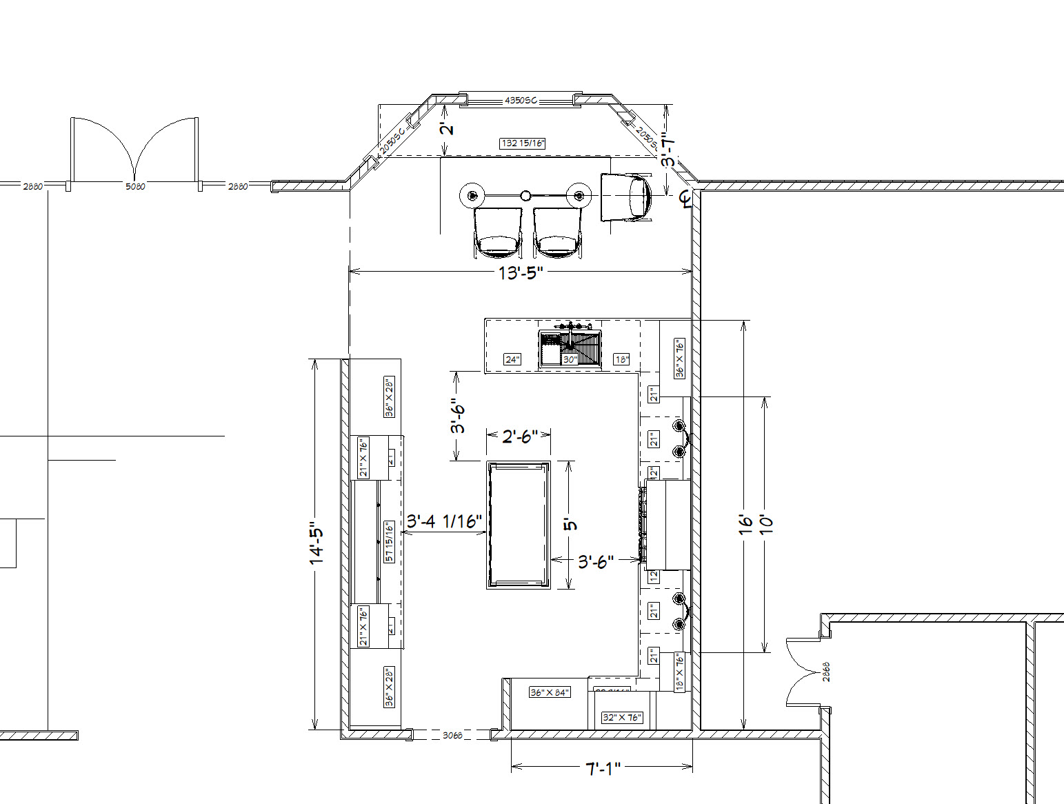
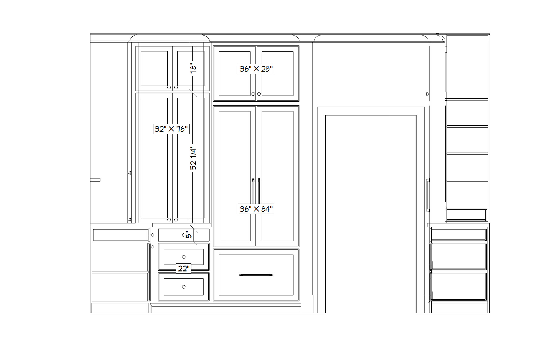
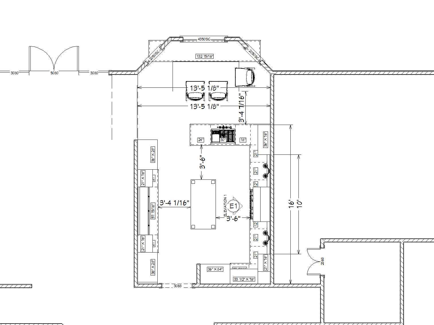
Palentchar Residence