Patrick Resendiz
Design Services
Canva Library
Training Academy
Projects
Instagram
About
Design Services
Canva Library
Training Academy
Projects
Instagram
About
Back to Projects
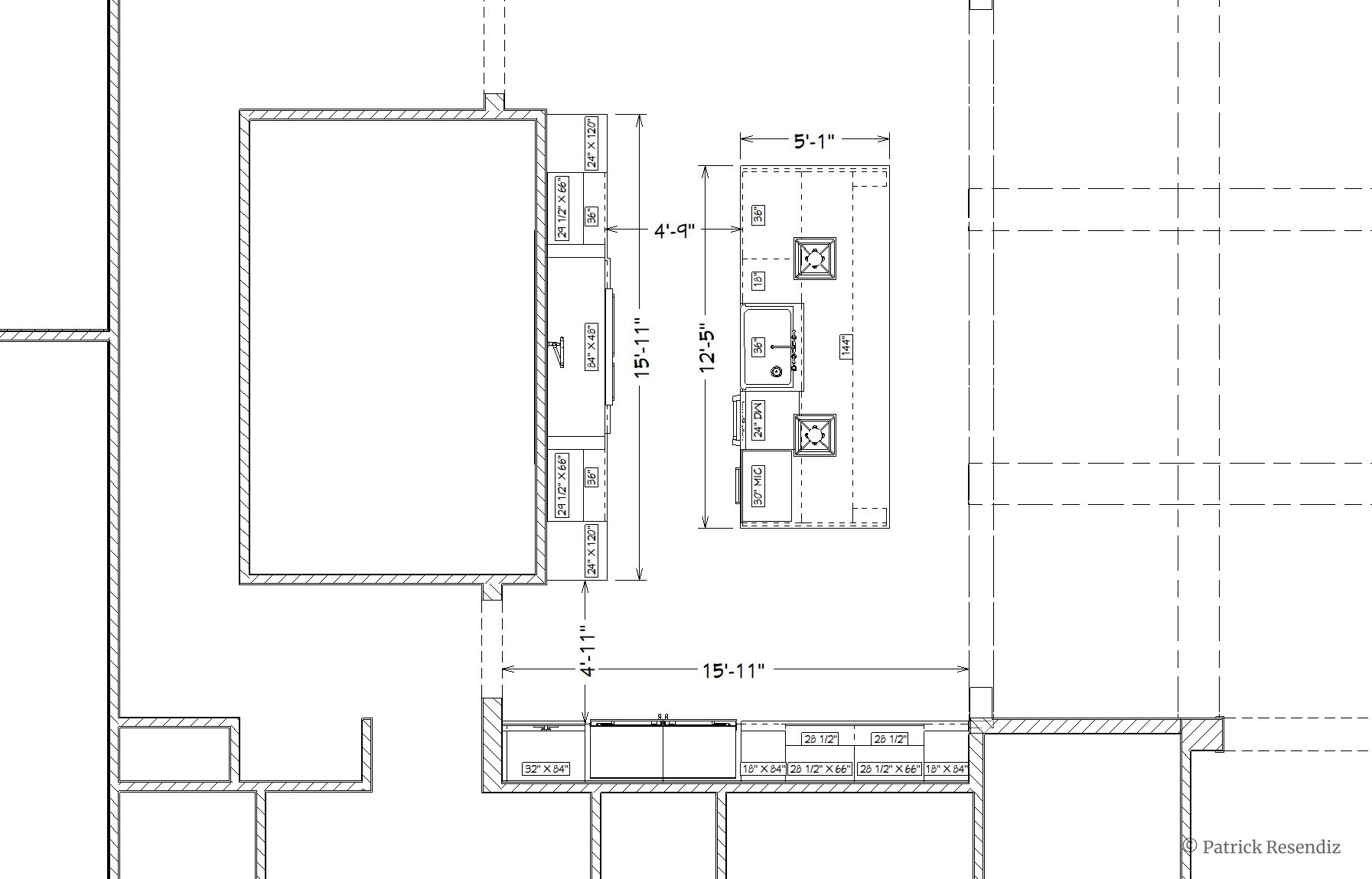
Nowak Residence