Patrick Resendiz
Design Services
Canva Library
Chief Academy
Projects
Instagram
Contact
Design Services
Canva Library
Chief Academy
Projects
Instagram
Contact
Back to Projects
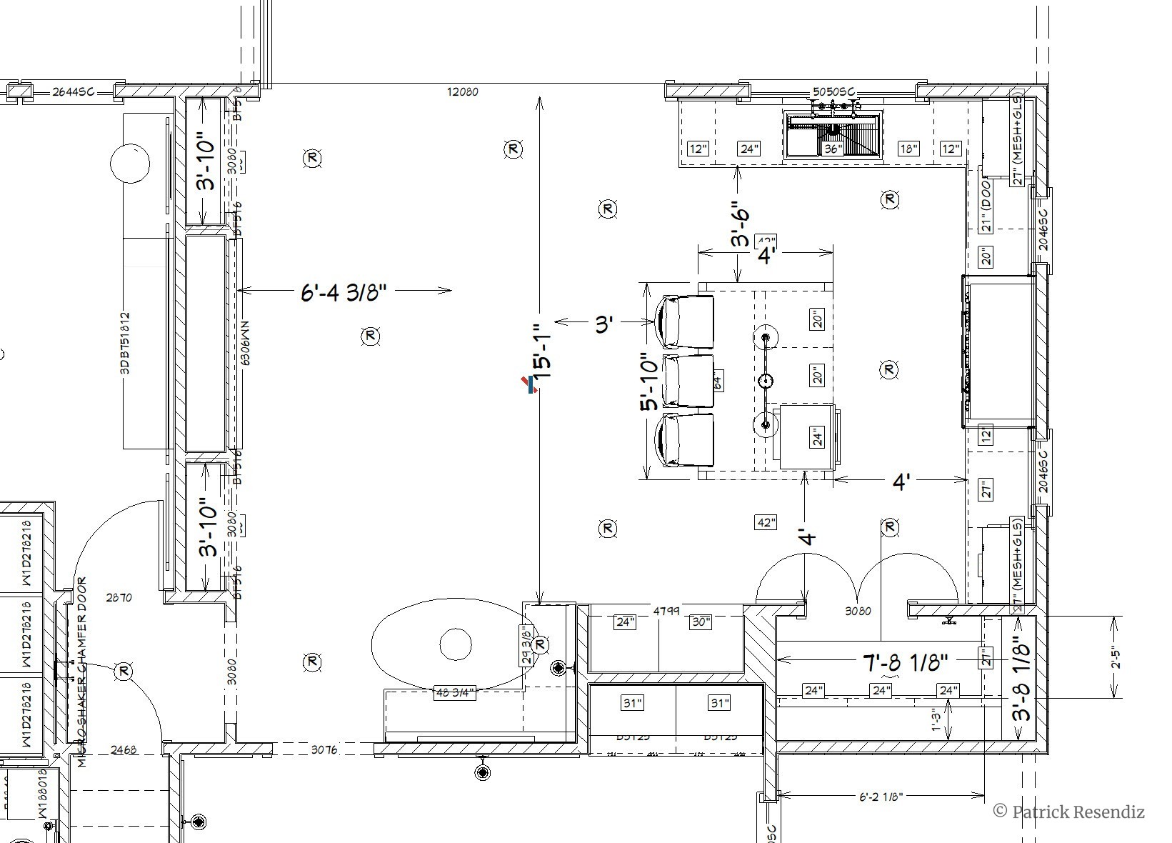
Dabit Residence